云南创艺装饰工程集团大理有限公司
平台合作商家

云南省大理白族自治州大理市下关人民街1号

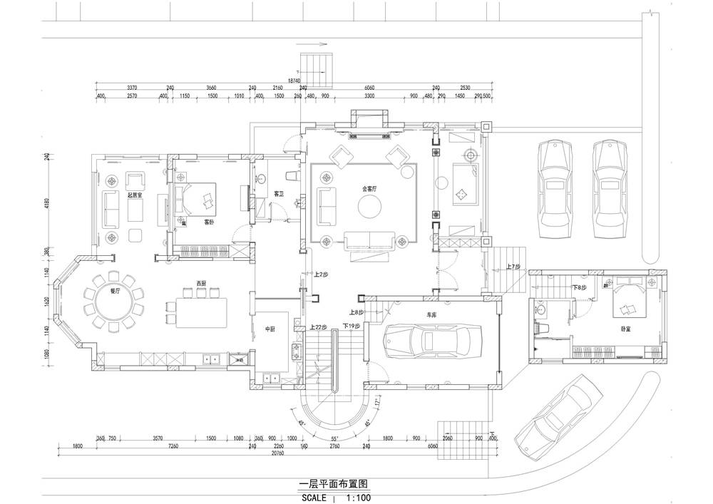
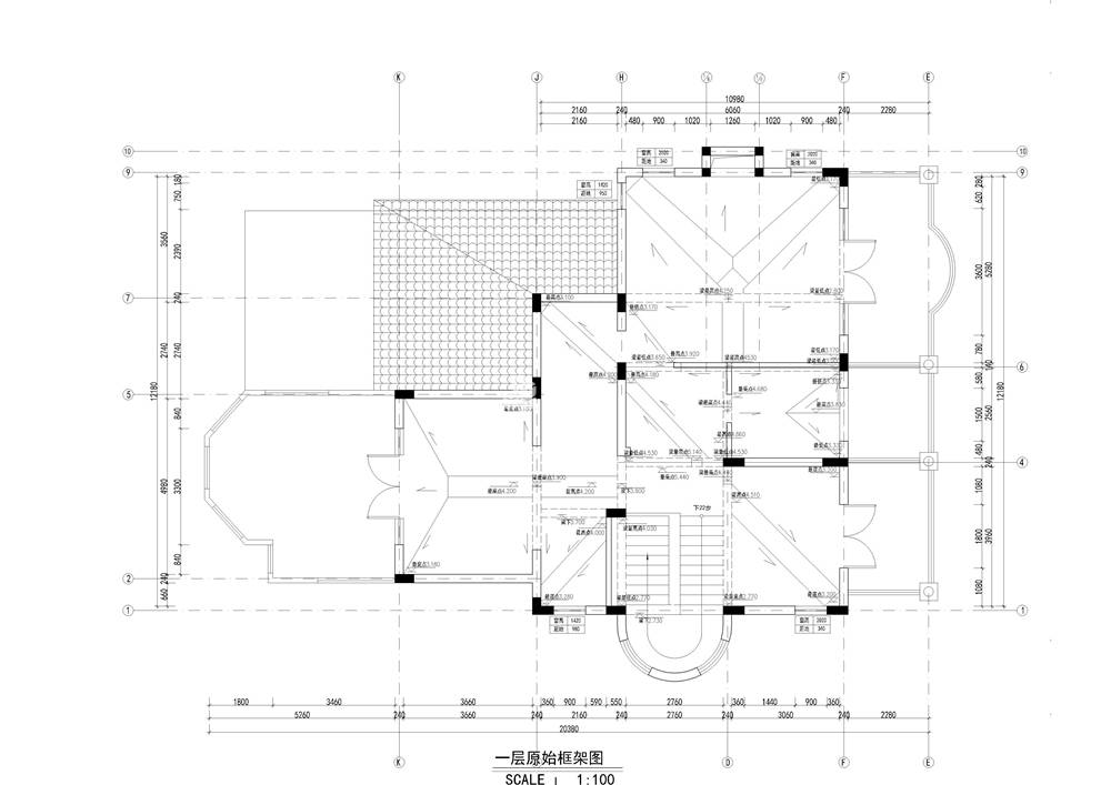
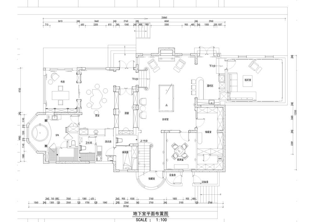
欧式风格别墅

2019-04-25 浏览量:2528

微信扫码,手机阅读

  • 设计师: 云南创艺装饰工程集团大理有限公司
  • 户型结构:别墅
  • 装修风格:欧式
已有 1116 人找他设计 免费设计
+

一分钟测试你喜欢哪种装修风格?一分钟测试你喜欢哪种装修风格?一分钟测(38)

北欧简约、复古美式、大气欧式、清新地中海风,总有一款适合你!(43)

扫描二维码

即可在 微信 阅读这篇干货

全国统一热线 400-060-6339

扫码添加官方微信

今日已有 1016位业主预约装修

预约需要屯粮积草来审核,请耐心等待,我们会在收到您的信息之后 第一时间和您取得联系!